















|
 |
 |

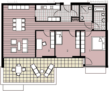
Wohnung 9
4 Zimmer, Dachgeschoss Mitte
Wohnfläche ca. 123,4 qm zzgl. Kellerraum


| |
|
Flur |
ca. 13,9 qm |
| |
Abstell |
ca. 1,6 qm |
 |
|
DU/WC |
ca. 4,1 qm |
| |
Bad |
ca. 5,7 qm |
| |
Zimmer 1 |
ca. 17,5 qm |
| |
Zimmer 2 |
ca. 12,9 qm |
| |
Zimmer 3 |
ca. 10,2 qm |
| |
Wohnzimmer |
ca. 34,8 qm |
| |
Küche |
ca. 7,6 qm |
 |
 |
 |
| |
Dachterrasse |
ca. 30,2 qm |
| |
(überdacht
zu 50% Wfl) |
|
| |
|
|
| |
Keller |
ca. 7,1 qm |
| |
|
|
| |
|
Änderungen vorbehalten |

  
|
 |